Adres:
Brzezińscy Nieruchomości • ul. Kaliska 14, Wieluń
Telefon:
790 759 999
E-mail:
biuro
Start
Nasza inwestycja
Dziennik budowy
Galeria
Przeglądaj Mieszkania
Biuro sprzedaży
Budynek C
/
Parter
/ C-P0-M2
Zarezerwowane
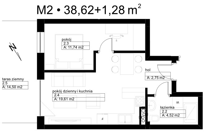
Powierzchnia mieszkania:
38.62 + 1.28 m²
Pobierz kartę mieszkania w Pdf:
Pokój dzienny i kuchnia:
19.61 m²
Pokój 1:
11.74 m²
Łazienka:
4.52 m²
Hol:
2.75 m²
Balkon / Taras ziemny:
14.50 m²
Komórka lokatorska:
1.28 m²
Rzut mieszkania
Rzut kondygnacji
Powered by
SobiPro
Z przyjemnością odpowiemy na wszystkie Wasze pytania
BIURO SPRZEDAŻY MIESZKAŃ
BRZEZIŃSCY NIERUCHOMOŚCI
ul. Kaliska 14, Wieluń
/brzezinscynieruchomosci
/Osiedle.Urocze.Wielun
790 759 999
790 719 999
biuro@brzezinscy.agency
www.brzezinscy.agency
Start
Nasza inwestycja
Dziennik budowy
Galeria
Przeglądaj Mieszkania
Biuro sprzedaży